
調節閥
閥門首頁 > 產品展示 > 調節閥 > 





ZDLQ、ZDLX型電子式電動三通調節閥廣泛應用于化工、石油、冶金、電站、輕紡、造紙和制藥等工業生產過程的自動化調節和遠程控制。電動三通調節閥壓力等級有PN1.6 4.0 6.4MPa;公稱通徑DN25~300mm;適用流體溫度有-40~+450℃;按溫度高低配用不同閥蓋可分常溫型、高溫型兩種。
1.ZDLQ、ZDLX型電子式電動三通調節閥是自動化控制系統中儀表的執行單元,以AC220V電源電壓作動力,接受來自DCS、PLC系統或調節儀表、操作器等輸入的(4-20mA、0-10mA或1-5VDC)電流信號或電壓信號,即可控制運轉。全電子式電動執行器,采用機電一體化結構,具有機內伺服操作和開度信號位置反饋、位置指示、手動操作等功能,功能強、性能可靠、連線簡單、調節精度高,以直行程輸出的推力改變閥門開度位移,達到對流體介質的工藝參數精確調節控制。
2.ZDLQ、ZDLX型電子式電動三通調節閥按作用模式可分;正作用:電閉式(當電信號增大時閥位向下位移),《B型》
反作用:電開式(當電信號增大時閥位向上位移),《K型》
3.三通調節閥閥芯結構為圓筒型薄壁窗口形閥芯,采用閥芯側面導向與閥座內表面導向和上襯套導向,因此導向面積大,工作可靠。流體對閥芯作用方向都處于流開狀態,故閥工作性能穩定。
4.三通調節閥有三通合流式調節閥(把兩種流體經三通閥混合成一種流體)和三通分流式調節閥(把一種流體經三通閥分成兩路流出)兩種形式。當公稱通徑DN≤80mm和壓差較小的場合時,分流閥可以采用同口徑的合流閥代替。流量特性有直線性、拋物線性兩種。
5.三通調節閥它可以代替二臺同時使用的二通調節閥,起分流或合流作用及兩相調節配比作用。
| DN/mm | 閥座直徑/mm | 額定流量系數Kv | 允許壓差 | PN | 行程/mm | 流量特性△p/MPa | 使用溫度/℃ | 閥體材料 | |
|---|---|---|---|---|---|---|---|---|---|
| 合流閥 | 分流閥 | ||||||||
| 25 | 26 | 8.5 | —— | 3.2 | 40、63 | 16 | 直線 |
-40~250 (常溫型) -40~450 (中溫型) |
ZG270~500、 ZG1Cr18Ni9Ti |
| 32 | 32 | 13 | 2.2 | ||||||
| 40 | 40 | 21 | 2.2 | 25 | |||||
| 50 | 50 | 34 | 1.41 | ||||||
| 65 | 66 | 53 | 1.38 | 40 | |||||
| 80 | 80 | 85 | 85 | 0.94 | |||||
| 100 | 100 | 135 | 135 | 0.61 | |||||
| 125 | 125 | 210 | 210 | 0.51 | 60 | ||||
| 150 | 150 | 340 | 340 | 0.36 | |||||
| 200 | 200 | 535 | 535 | 0.20 | |||||
| 250 | 250 | 800 | 800 | 0.19 | 100 | ||||
| 300 | 300 | 1260 | 1260 | 0.13 | |||||
一、①電子式電動三通調節閥產品名稱與型號②電子式電動三通調節閥口徑③是否帶附件以便我們的為您正確選型。
二、若已經由設計單位選定上海湖泉的電子式電動三通調節閥型號,請按電子式電動三通調節閥型號直接向我司銷售部訂購。
三、當使用的場合非常重要或環境比較復雜時,請您盡量提供設計圖紙和詳細參數,由我們的湖泉閥門專家為您審核把關。
感謝您訪問我們的網站【http://www.zhengtianyang.com.cn/】,如有任何疑問.您可以致電給我們,我們一定會盡心盡力為您提供優質的服務
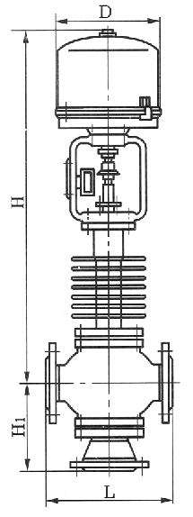
| DN | L | 行程 | H | H | D | |||
|---|---|---|---|---|---|---|---|---|
| 常溫 | 中溫 | |||||||
| PN40 | PN63 | PN40 | PN63 | |||||
| 25 | 190 | 200 | 16 | 150 | 160 | 555 | 707 | 225 |
| 32 | 210 | 210 | 16 | 160 | 170 | 561 | 709 | 225 |
| 40 | 230 | 235 | 25 | 170 | 180 | 660 | 812 | 225 |
| 50 | 255 | 265 | 25 | 190 | 200 | 675 | 827 | 225 |
| 65 | 285 | 295 | 40 | 220 | 220 | 863 | 1027 | 225 |
| 80 | 310 | 320 | 40 | 230 | 240 | 686 | 1032 | 225 |
| 100 | 355 | 370 | 40 | 250 | 260 | 872 | 1036 | 225 |
| 125 | 425 | 440 | 60 | 300 | 300 | 905 | 1120 | 225 |
| 150 | 460 | 475 | 60 | 320 | 320 | 920 | 1135 | 225 |
| 200 | 560 | 570 | 60 | 380 | 380 | 950 | 1165 | 225 |
| 250 | 660 | 670 | 100 | 474 | 474 | 1203 | 1440 | 415 |
| 300 | 735 | 770 | 100 | 585 | 585 | 1265 | 1502 | 415 |
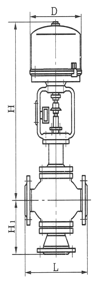
| DN | 行程 | D | H | L | H | ||
|---|---|---|---|---|---|---|---|
| PN40 | PN63 | PN40 | PN63 | ||||
| 80 |
40 |
225 | 885 | 310 | 320 | 250 | 260 |
| 100 | 897 | 355 | 370 | 275 | 285 | ||
| 125 | 60 | 225 | 931 | 425 | 440 | 320 | 320 |
| 150 | 945 | 460 | 475 | 340 | 340 | ||
| 200 | 979 | 560 | 570 | 400 | 400 | ||
| 250 | 100 | 415 | 1268 | 660 | 670 | 540 | 540 |
| 300 | 1294 | 740 | 770 | 612 | 612 | ||
![]() |
![]() |
| 常溫型 | 中溫型 |
|---|
上一篇:ZDLP/ZAZp/ZAZM成套電動單座調節閥 / 下一篇:ZZYN自力式雙座調節閥